Aktuelles     Büro     Leistungen     Projekte     Kontakt     Auftraggeber/Referenzen     Impressum     Datenschutz
 
     
 

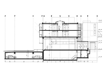
Querschnitt

Der Neubau ist als 3-geschossiges, vollunterkellertes Bauwerk in Stahlbetonskelett-konstruktion mit Stahlbetonflachdecken geplant.

Um das für den großen Saal benötigte stützenfreie Erdgeschoß herzustellen, sollen Stahlverbundträger verwendet werden, die die Lasten der Obergeschosse abfangen: In den Obergeschossen dienen die Zimmertrennwände als tragende Elemente, die gemauerten Ausfachungen der Außenwände sind nichttragend.

Die geschlossenen Teile der Fassade sollen als Reminiszenz an das alte Speichergebäude mit einer Ziegelverkleidung versehen werden, die Öffnungen sollen als Metall-Glas-Fassaden ausgeführt werden