Aktuelles     Büro     Leistungen     Projekte     Kontakt     Auftraggeber/Referenzen     Impressum     Datenschutz
 
     
 

 

 
     
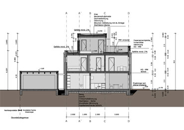
                                                                                                                                        Haus G Schnitt